ULM Residential Life
Welcome to VCOM & ULM Housing
As the only VCOM partner offering on-campus housing, ULM Residential Life is excited that you are considering living in Bayou Village Apartments or Warhawk Village Apartments. These apartment-style communities provide the convenience of campus living within walking distance of the VCOM Louisiana campus.
Living in Bayou Village or Warhawk Village allows you to:
- Live alongside other medical school students in a supportive academic community
- Walk to class and nearby campus services
- Access ULM campus recreation and fitness facilities, Warhawks athletic events, arts programming, and student clubs and activities
Apartment Communities
Bayou Village Apartments
Four-bedroom apartment community located on the same street as VCOM, offering convenient access to campus and academic facilities.
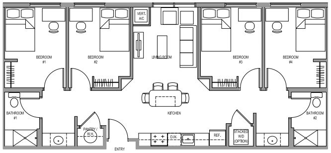
Bayou Village Apartments Floor Plan – 4 Bedroom Layout
Warhawk Village Apartments
Apartment community offering both four-bedroom and two-bedroom floor plans with full amenities and nearby parking.
Warhawk Village Apartments Floor Plan – 4 Bedroom Layout

Apartment and Community Amenities
Bayou Village Apartments and Warhawk Village Apartments offer fully furnished, apartment-style living designed to support the needs of VCOM students. Apartments feature:
- 4-bedroom / 2-bathroom floor plans with private bedrooms
- Fully furnished living and dining areas
- Bedroom furniture, including a full-size bed, desk, and desk chair
- Full kitchen with refrigerator, stove, dishwasher, and microwave
- Washer and dryer in each apartment
- High-speed internet access in each bedroom
- Cable television and streaming access
- Bayou Village Apartments: Cable with 80+ channels and streaming access with on-campus networks
- Warhawk Village Apartments: Fire TV Stick provided to each resident
- Utilities included (water, electricity, and heat)
- Individual lease agreements
- Electronic building access and safety cameras
- On-call resident assistants and emergency maintenance
Cost and Meal Plan Requirement
All VCOM student apartment leases are Summer plus Academic Year contracts (12 months, July through June). Cost is due up front, and payment schedules are coordinated with VCOM billing and disbursement.
For current apartment housing rates, please visit the ULM Residential Life pricing page: View Housing Pricing.
The Village Meal Plan is the required base-level meal plan for all apartment residents. Students may select another on-campus meal plan, including All Access Silver, All Access Gold, All Access Platinum, or the Maroon Plan.
Meal plans follow the ULM Fall and Spring semester schedules and are not available during the Summer semester.
For current meal plan options and pricing, please visit the ULM Dining Services meal
plan page:
View Meal Plan Options and Pricing.
How to Apply
VCOM students must complete ULM’s online housing application after being accepted and submitting a deposit to VCOM Louisiana. VCOM will provide ULM with a list of accepted students around mid- to late April. Once this information is processed and uploaded, you will be able to access eRezLife. VCOM will notify students when they are eligible to apply for housing.
- Go to ulm.erezlife.com.
- Select “Forgot My Password” to set up your account.
- Enter the full email address you used to apply to VCOM and click “Reset Password.”
- Check your email for instructions to complete the password reset.
- Once you log in, under Housing, select Housing Overview.
- Locate the VCOM application and click Apply.
A $200 non-refundable room reservation fee is due at the time of application.
Cancellation Policy
The cancellation deadline will be provided in your housing assignment communications.
After move-in, students may not cancel mid-year unless they are leaving the program or graduating, or if otherwise approved by VCOM and Residential Life due to clinical rotation requirements.
Roommate Requests
- Requests must be mutual
- Assignment date follows the later application date
- Students without requests will be matched with other VCOM students
Move-In Information
VCOM students will move in before the VCOM start date in mid-July. Detailed instructions will be emailed to assigned students.
All students, parents, and the Warhawk family, both on- and off-campus, are encouraged to download the ULM Safe app for emergency alerts and campus safety information. The links below direct you to the respective app stores, where you can learn more about the app and download it for your device.
Community Standards & Living
Rules and Regulations
Residents are subject to the University of Louisiana Monroe Code of Conduct and Housing and Residence Life policies. Warhawk Village residents are also subject to standards established by Capstone Management Group. The following are key rules and regulations that all residents are expected to follow:
- Campus is tobacco-free and alcohol-free
- Courtesy hours are in effect at all times
- Quiet hours: Sunday–Thursday 9 PM–9 AM; Friday–Saturday 11 PM–11 AM
- No overnight guests
- Rooms must be kept clean and orderly
- Trash must be disposed of in designated bins
- Guests must be accompanied at all times
- Residents must follow evacuation and severe weather procedures
- University staff may enter rooms for safety inspections
While the information on this page is helpful, it is not all-inclusive. Students living in residence halls and their guests are expected to be familiar with all University and Housing policies, including those published in the following resources:
- Student Handbook: The official publication of University policies and procedures affecting students. View the Student Handbook
- Guide to Residence Hall Living: A guide explaining University and residence hall policies related to on-campus living and personal conduct. View the Guide to Residence Hall Living
Failure to follow University and Housing policies may result in disciplinary action, fines, and/or removal from housing. Lack of awareness or misunderstanding of policies is not considered an acceptable reason for policy violations.
Maintenance Requests
Bayou Village residents: Submit non-emergency maintenance requests using the Residence Hall Maintenance Request Form. For urgent issues such as water leaks, no air conditioning, or broken doors, contact the on-duty staff member or resident assistant immediately.
Warhawk Village residents: Submit maintenance requests through Entrata or contact the leasing office during business hours. After hours, contact the resident assistant on call for urgent maintenance concerns.
Vehicles and Parking
Parking is available but not guaranteed. Your VCOM decal or hang tag allows parking at both Bayou Village and Warhawk Village Apartments and must be displayed at all times.
Internet Access
Bayou Village Wi-Fi network: ULMDorms-<BuildingName>-5G or ULMDorms-<BuildingName>-2G. Passwords change each semester and are available through the Residential Life Main Office.
Warhawk Village Wi-Fi access is available through the leasing office.
Mailing Address Information
Warhawk Village Residents
<<Student's Legal First, Middle & Last Name>>
1001 Peyton Dr
Warhawk Village Apts – Unit #
Monroe, LA 71203
Bayou Village Residents
<<Student's Legal First, Middle & Last Name>>
700 University Avenue
ULMRL <<Building Name & Room Number>>
Monroe, LA 71212
Assistance Animals in Residence
Pets are not permitted in Bayou Village Apartments, including for visits or pet sitting. Service animals and approved assistance animals are permitted in accordance with federal law and University policy after completing the required registration process with ULM Residential Life.
Move-Out and Checkout Procedures
All residents must complete the official checkout process before leaving their apartment. Checkout includes the following required steps:
- Remove all personal belongings: All items must be removed from the room and apartment before checkout. Residential Life staff will not accept keys or complete your checkout if belongings remain in the room or the space is not clean.
- Clean the room and bathroom: Your bedroom, bathroom, and shared areas must be clean and free of personal items and trash. Failure to clean may result in additional charges.
- Return keys to Residential Life staff: Keys must be returned directly to a Residential Life staff member. Do not leave keys in the room, slide them under a door, or give them to roommates or friends. Improper key return will result in an improper checkout charge.
The Residential Life main office cannot complete checkouts. If you are unable to meet with staff, you may complete an Express Checkout Envelope and Agreement.
Express Checkout Option
Express Checkout allows you to return your keys without meeting with staff; however, all checkout requirements must still be completed. To be considered properly checked out, you must:
- Follow all checkout procedures and the checkout checklist
- Remove all personal belongings and trash
- Clean the room and return furniture to its original condition and placement
Failure to follow checkout procedures may result in improper checkout, lock change, cleaning, or damage charges.
By choosing Express Checkout, you waive your right to be present during the room inspection and your right to appeal any cleaning, damage, or key charges. Rooms and common areas will be inspected after departure, and residents are financially responsible for any damages not documented on the original Unit Inventory and Condition Form.

